Fill out the form to download our brochure

"*" indicates required fields

Welcome to

PLOT 44

  • £1,175,000
  • 4 bedrooms
  • 2 bathrooms
  • 1,810 sq ft
  • Double car barn
  • Large west-facing garden
  • Stamp Duty Paid - £61,250

Discover a new way of living at Coppice Meadow

A beautifully presented four-bedroom detached home offering spacious and flexible living across three floors. The open-plan kitchen and dining area is thoughtfully designed for modern family life, complete with high-spec appliances, a Quooker boiling water tap, and a built-in wine cooler – ideal for both everyday living and entertaining. A separate living room provides a peaceful retreat, while underfloor heating powered by an energy-efficient air source heat pump ensures year-round comfort.

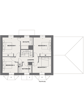
The principal bedroom spans the top floor, featuring a luxurious en suite and fitted wardrobes, creating a calm and private sanctuary. Three further well-proportioned bedrooms and a stylish family bathroom are arranged over the first floor, with additional fitted wardrobes in bedroom two for smart storage.

Outside, the home benefits from a generous garden, private driveway parking, and a 10-year new build warranty for complete peace of mind.

GROUND FLOOR

ROOM

DIMENSIONS


Kitchen

3.86m x 3.52m

Dining Area

4.22m x 3.86m

Living Room

5.29m x 3.86m

Study

3.86m x 2.36m

FIRST FLOOR

ROOM

DIMENSIONS


Bedroom 1

3.91m x 3.50m

Bedroom 2

3.89m x 3.49m

Bedroom 3

4.14m x 3.49m

Bedroom 4

3.49m x 3.38m

ROOM

DIMENSIONS


Kitchen

3.86m x 3.52m

Dining Area

4.22m x 3.86m

Living Room

5.29m x 3.86m

Study

3.86m x 2.36m

ROOM

DIMENSIONS


Bedroom 1

3.91m x 3.50m

Bedroom 2

3.89m x 3.49m

Bedroom 3

4.14m x 3.49m

Bedroom 4

3.49m x 3.38m

Find out more about our incentives

What’s included

Icon of a tap head with flowing water

Quooker tap

Icon of a washing machine

Integrated appliances & wine cooler

Icon of a wardrobe

Bedrooms with fitted wardrobes

Icon of a air-conditioning unit

Air Source heat pump

Icon of a tile with heat coming off of it, representing a heated floor

Underfloor heating to ground floor

Specifications

Kitchen & utility

  • Shaker style kitchen
  • Quartz worktops and splash backs
  • Electric, stainless steel single oven with additional combi oven
  • 5 burner induction hob and extractor cooker hood
  • Integrated fridge/freezer
  • Integrated dishwasher
  • Stainless steel 1 1/2 bowl sink
  • Quooker, 3 way tap for boiling, warm and cold water
  • Integrated wine fridge
  • Amtico flooring

Bathroom & En-suite

  • Modern styled bathrooms and en suites with chrome fixings and Roca sanitary ware
  • Vanity unit basin* with chrome mixer taps
  • Toilets with soft-close seats
  • Chrome shower head with slide rail
  • Clear glass sliding door shower screen and glass bath shower screen
  • Heated chrome towel rails (size dependent on layout)
  • Ceramic wall tiles on selected areas, edges trimmed with brushed chrome strip
  • Shaver socket
  • Amtico flooring

Media & Connectivity

  • Prewired for Sky Q service in the living room
  • TV points in all bedrooms and studies
  • Telephone points in living room, hallway and master bedroom
  • USB charger points incorporated in sockets within kitchen, living room, study and master bedroom

Heating, Electrical & Lighting

  • Energy efficient Air Source Heat Pump system with mains pressure hot water system and central programmer
  • Underfloor heating to ground floor
  • Radiators to first floor
  • LED down lights in kitchen, utility, all bathrooms, en suites and cloakrooms
  • Pendant lighting in all other rooms
  • External lights for all external doors
  • External weatherproof power socket
  • Facility for future wireless alarm systems
  • Carbon monoxide detector

Finishing Details

  • Modern style painted internal doors with chrome finish door furniture
  • Carpeted, closed-tread, painted staircase with oak hand rail and spindles
  • Painted, three stepped architrave and skirting boards
  • Fitted wardrobes where shown in floor plans
  • Carpets to all principal rooms unless otherwise specified

External

  • Electrical vehicle charging point
  • Cycle store to selected houses only
  • Turf in the rear garden
  • Close board fencing around gardens
  • External water tap
  • Separate double garage
Modern kitchen with dining area, set table, and a door leading to the back of the house. Modern bathroom with beige tiles, grey walls, framed art, and a large mirror mounted on the right wall above the sink. Bright room with large windows, a desk with two chairs, and a cushioned window seat. Living area viewed from hallway with a white and beige décor, and a mirror above a console table in the hallway. Well lit hallway with wooden floors, a console table with a lamp, and an open door leading to the front of the house View from open door onto a patio with furniture and a garden leading to an outhouse building

Image 1/6

Image 2/6

Image 3/6

Image 4/6

Image 5/6

Image 6/6

Are you interested in Plot 44 at Coppice Meadow, why not explore the local area?

Take a look at what Haslemere has to offer